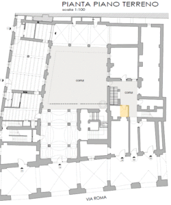
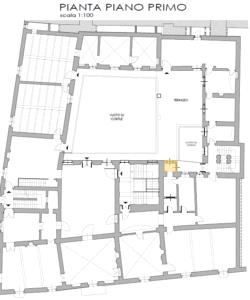
Nel cuore pulsante di Fossano, lungo la rinomata Via Roma sull’ angolo con Via San Giovanni Bosco proponiamo in vendita prestigioso palazzo nobiliare del XVIII secolo, tipica costruzione a blocco con i due accessi padronali e di servizio in parallelo sulla via principale. Dimora storica di grande fascino disposta su tre piani per una superficie complessiva di oltre 2.200 mq, comprensivo del piano mansardato recuperabile a fini abitativi. Al piano terreno si trovano quattro locali commerciali, tre dei quali affacciano direttamente su Via Roma e due su Via San Giovanni Bosco, per totali 440 mq garantendo ottima visibilità e potenziale redditività. L’ingresso principale, di grande impatto scenico, si apre su un maestoso androne con sei colonne in pietra, che sorreggono eleganti volte e conducono all’ampia corte interna. Il piano nobile, di circa 650 mq, è dominato dal salone principale a doppia altezza affacciante sulla corte interna da cui beneficia dell’ampia luminosità e delle ampie terrazze panoramiche. Soffitti alti ed affrescati, porte decorate ed ambienti luminosi raccontano la storia e la raffinatezza del palazzo. Al secondo piano, di circa 505 mq, è possibile realizzare eleganti unità abitative, mentre il piano sottotetto di 415 mq offre ulteriori possibilità di recupero e valorizzazione. Completa la proprietà un piano interrato di circa 280 mq.
Attualmente in discrete condizioni manutentive, l’immobile rappresenta un’opportunità unica per chi desidera riportare all’antico splendore una residenza di prestigio o per chi intenda realizzare un progetto di riqualificazione nel cuore della città.
Sono disponibili progetti di recupero e frazionamento in più unità abitative, concepiti per valorizzare gli elementi architettonici originali e adattarli alle esigenze abitative contemporanee. L’immobile è sottoposto a vincolo delle Belle Arti, a garanzia della tutela e della conservazione del suo valore storico e artistico.
€1.700.000,00









